WORK
Drafting
CONCEPT DESIGN
INTERIOR DESIGN
Resume
CONTACT
WORK
Drafting
CONCEPT DESIGN
INTERIOR DESIGN
Resume
CONTACT
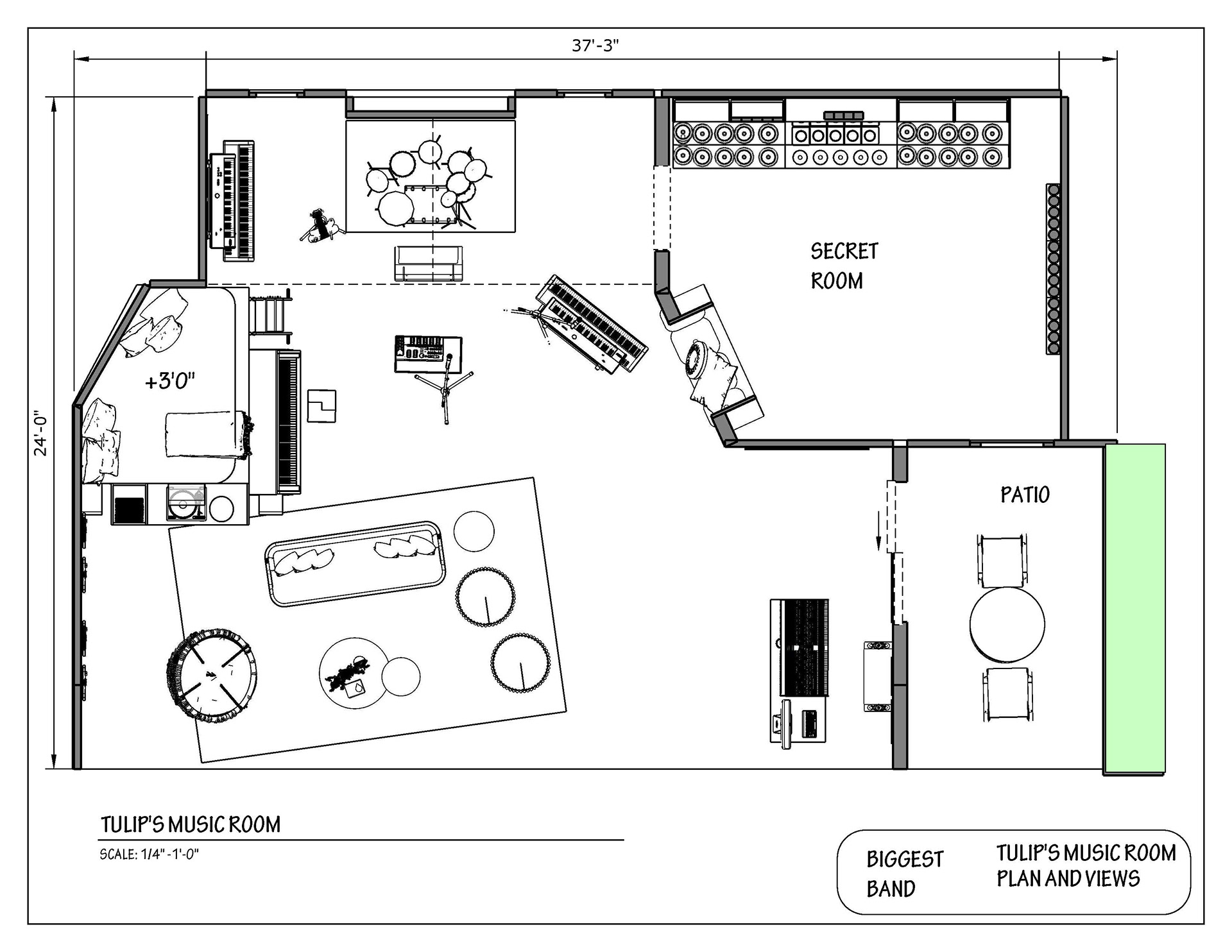
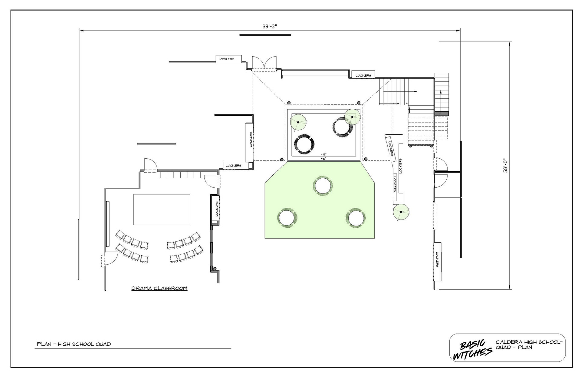
Minolae Jain
Digital Modeling
SketchUp placed on Google Earth
SketchUp - Style Render
Sketcup - Podium Render
SketchUp- Style Render
SketchUp- Podium Render
Rhino Render
Rhino Model - Stills
Rhino Model - Stills
You may also like
Home Economics Season 2 & 3
2023
Why Dont You Like Me
2023
Chakras For Sale
2024
Becoming Eddie
2023
Til Life Do Us Apart
2023
Unprisioned / Season 1 & 2
2024
Blippi
2023
Chhaya
2024
LITTLE FISH THEATRE
2024
T Rex Ranch
2023
↑
Back to Top
This website uses cookies to improve your experience
Accept
Decline